programme neuf à SCHIRMECK 67130
programme neuf à SCHIRMECK 67130 proche de la gare, prestations de haute qualité : Ascenseur et Portes palières renforcées (immeuble collectif)
Construction traditionnelle (brique terre cuite thermique) Isolation extérieure (optimisation des ponts thermiques) Chaufferie centrale au bois et PAC pour les maisons, Grandes terrasses et jardins, isolation phonique renforcée, Garages privatifs et parkings extérieurs, Large choix de carrelages et de stratifiés, Meuble vasque complet avec robinetterie Grohe, Peinture lisse aux murs, Finition haut de gamme du hall d’entrée pour l'immeuble collectif des appartements. 
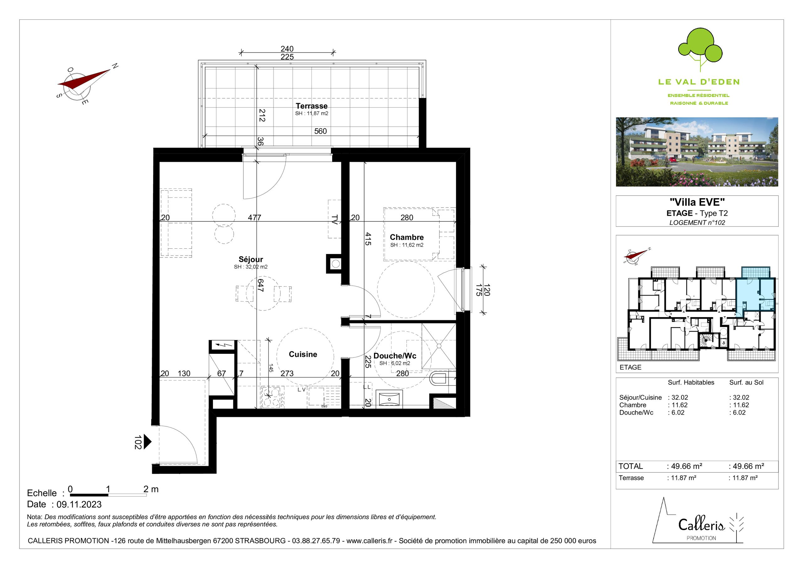
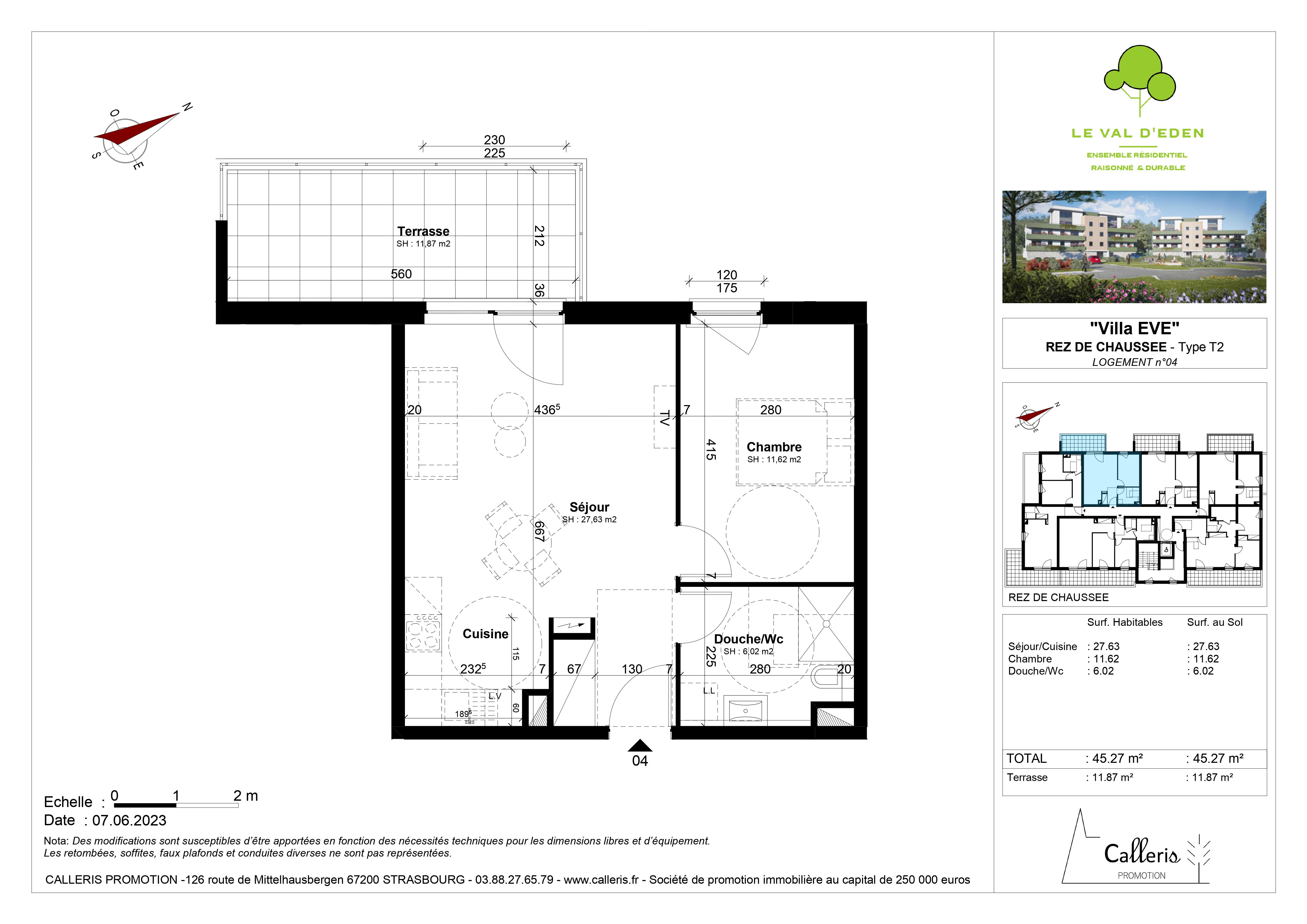
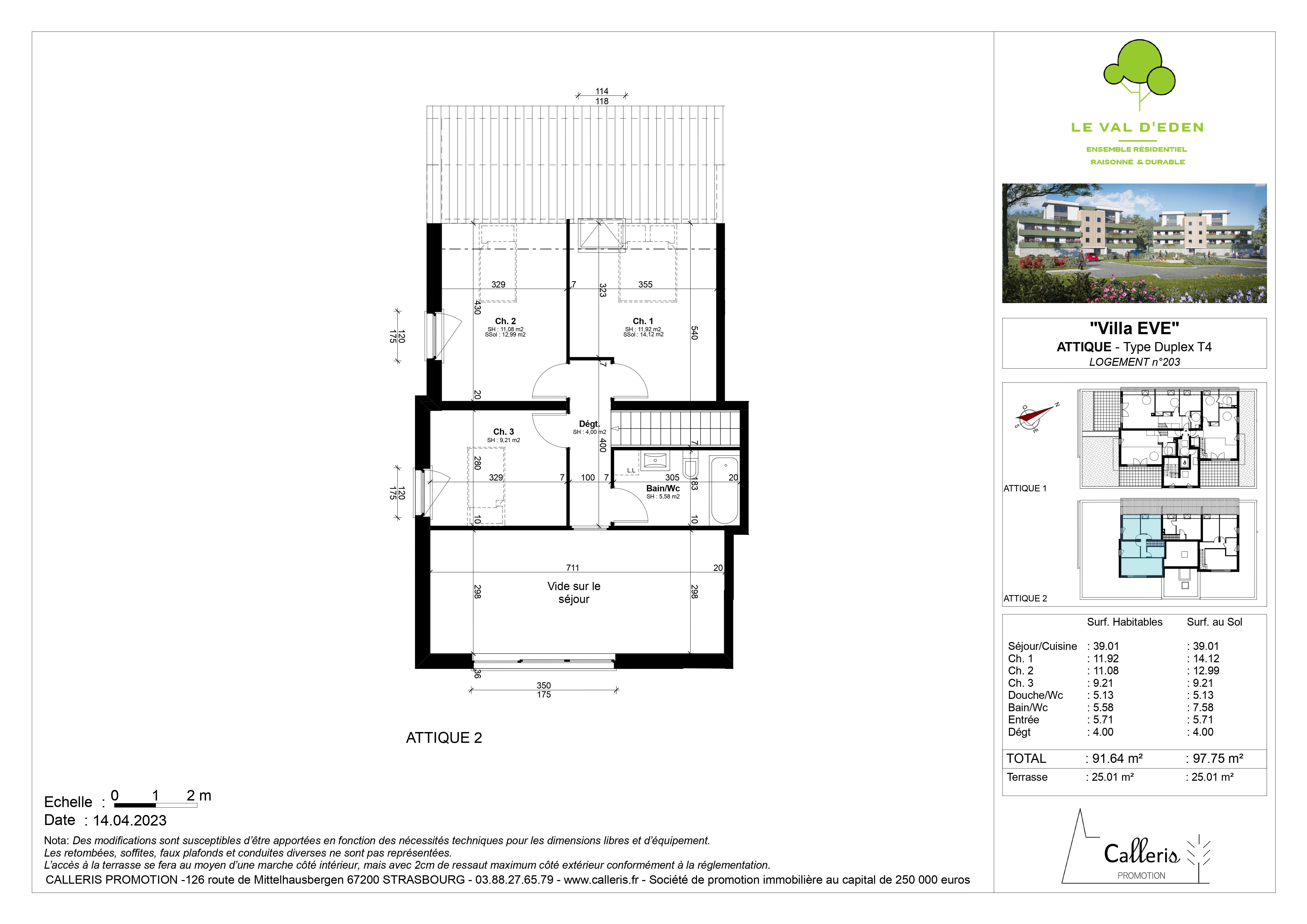
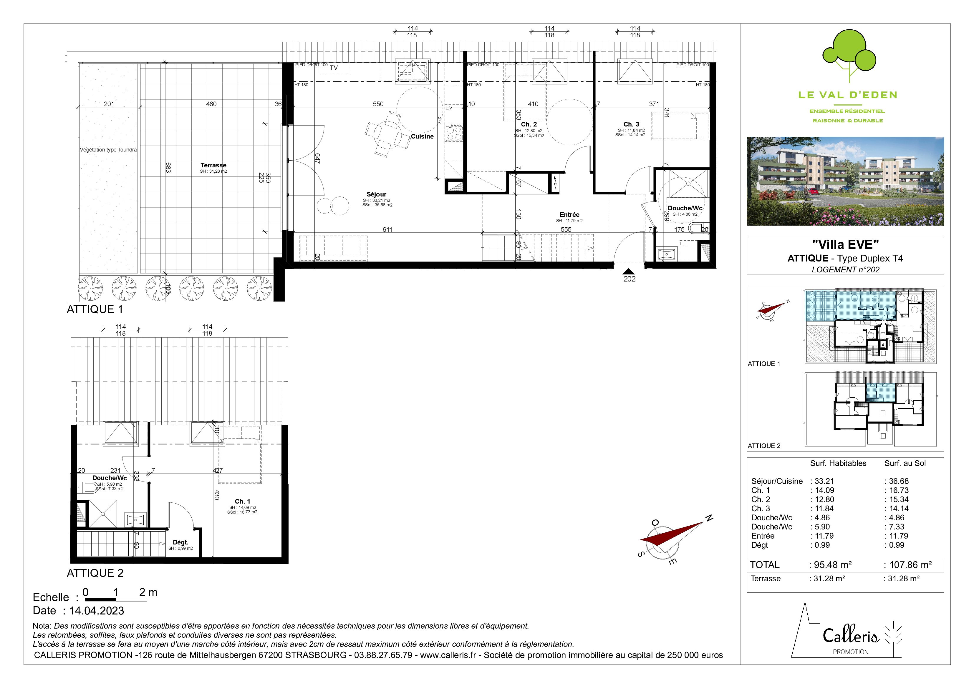
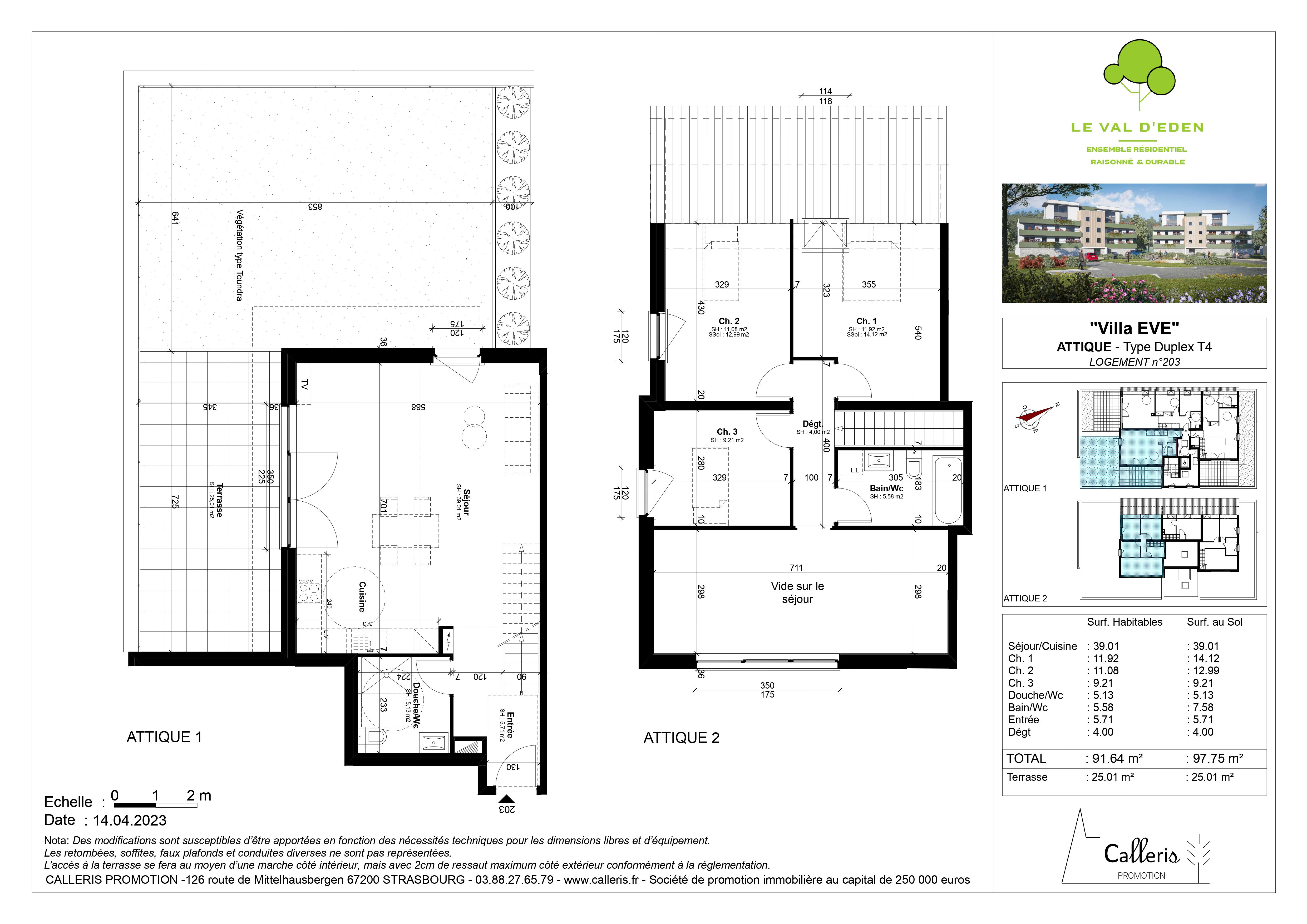
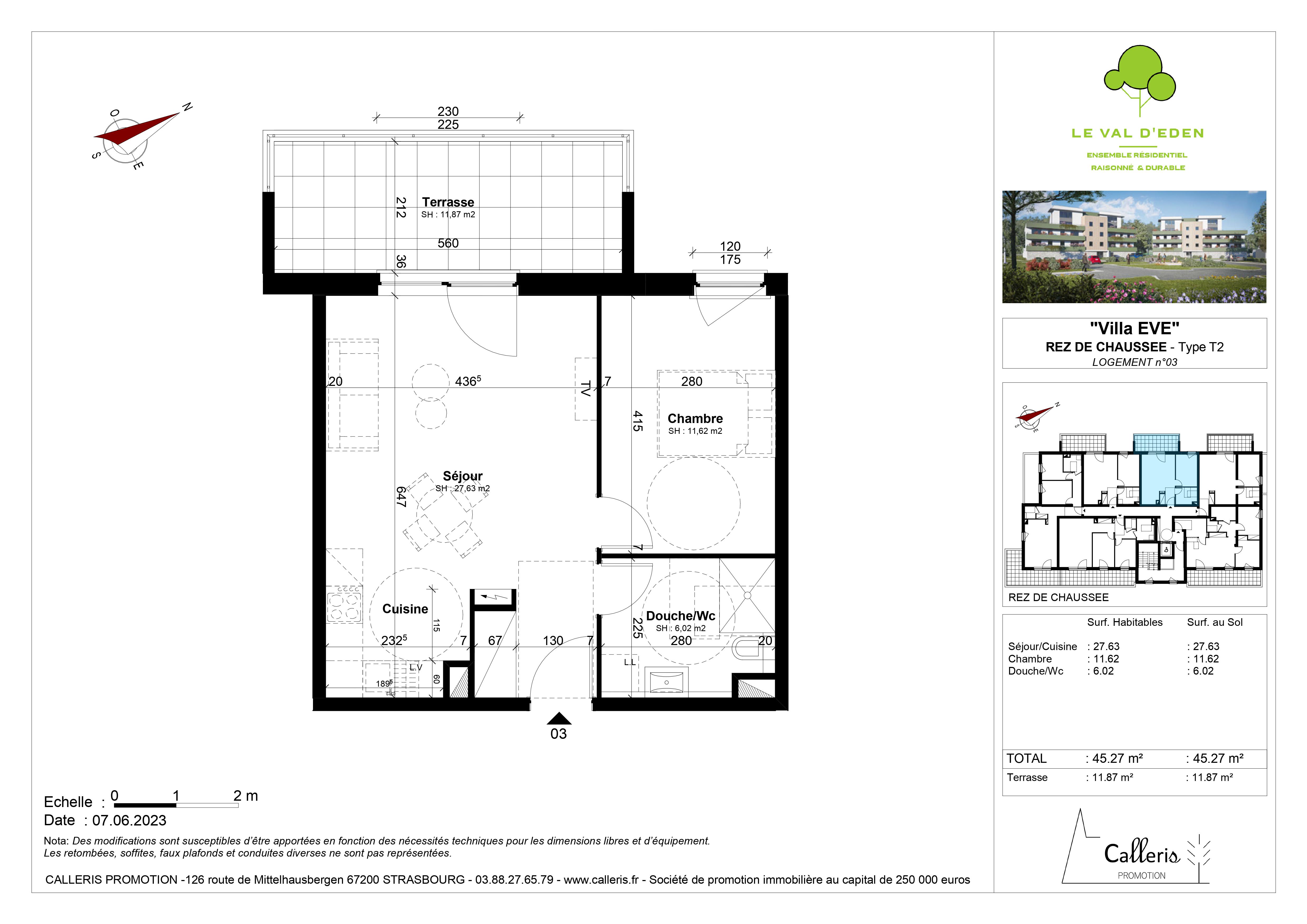
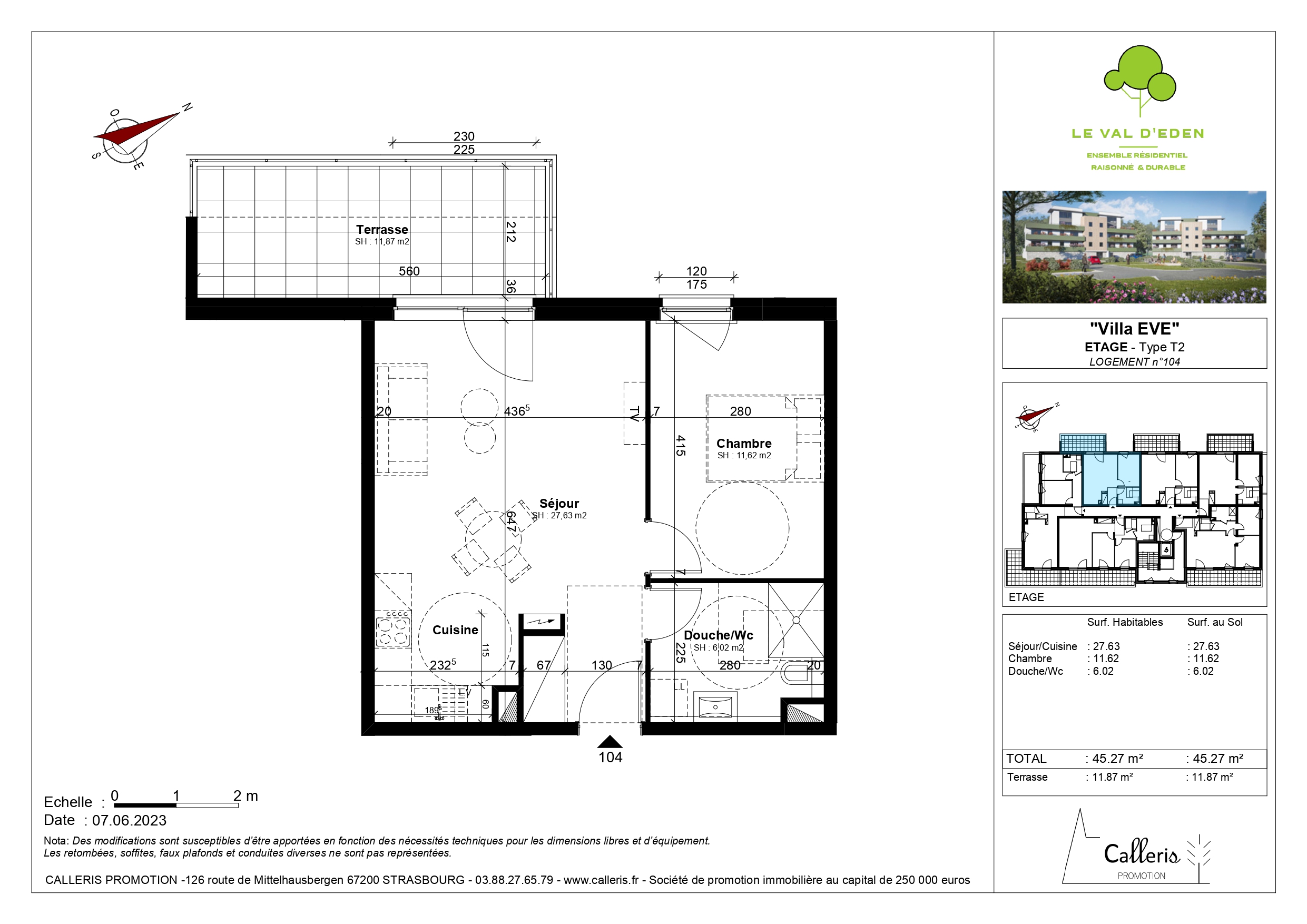
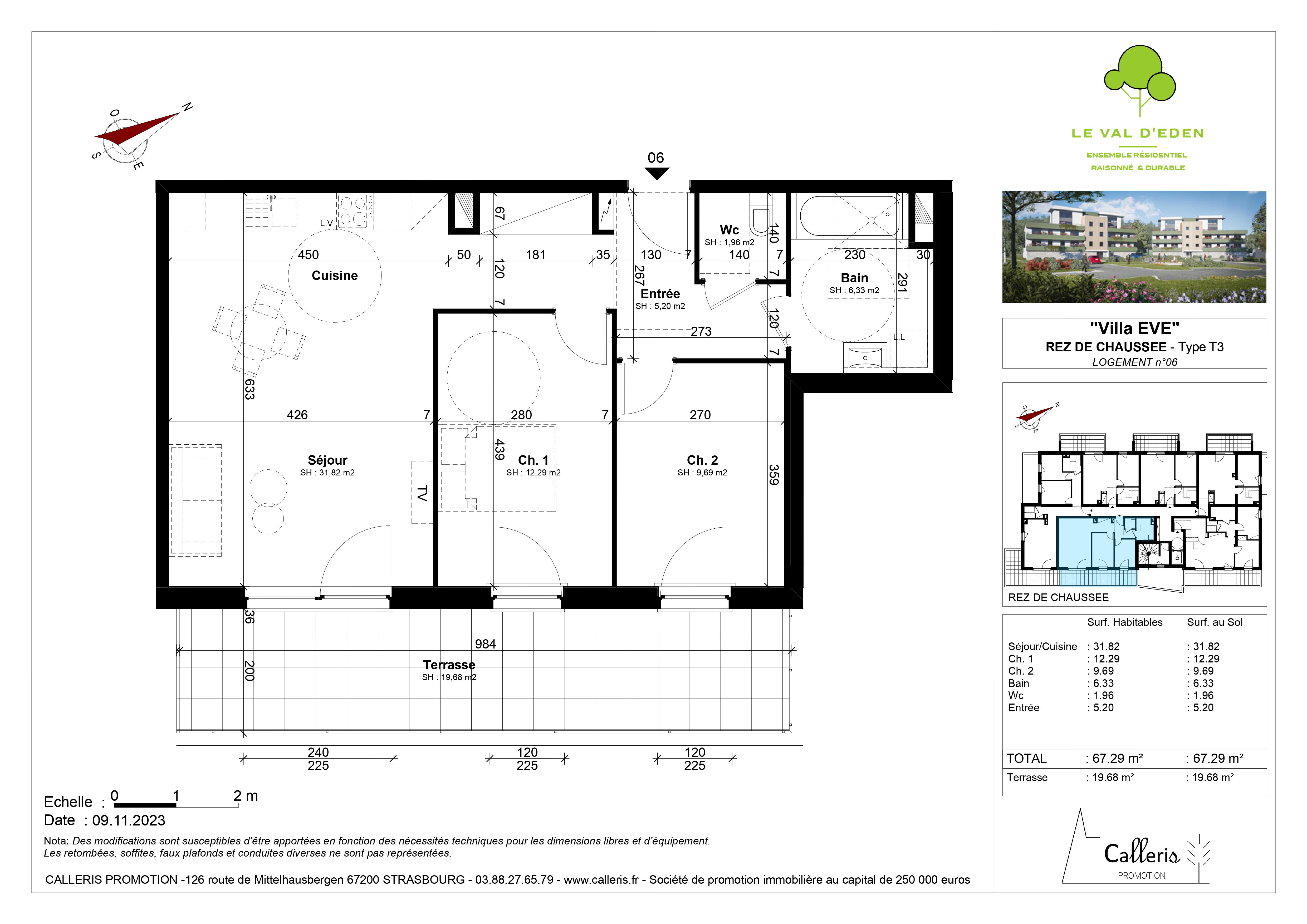
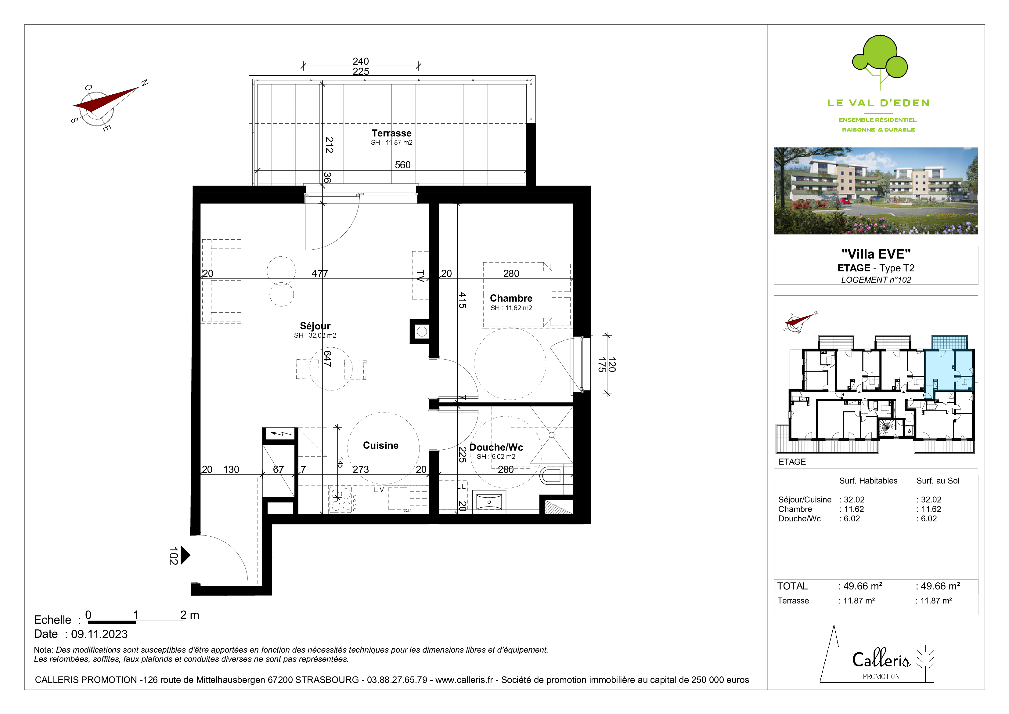
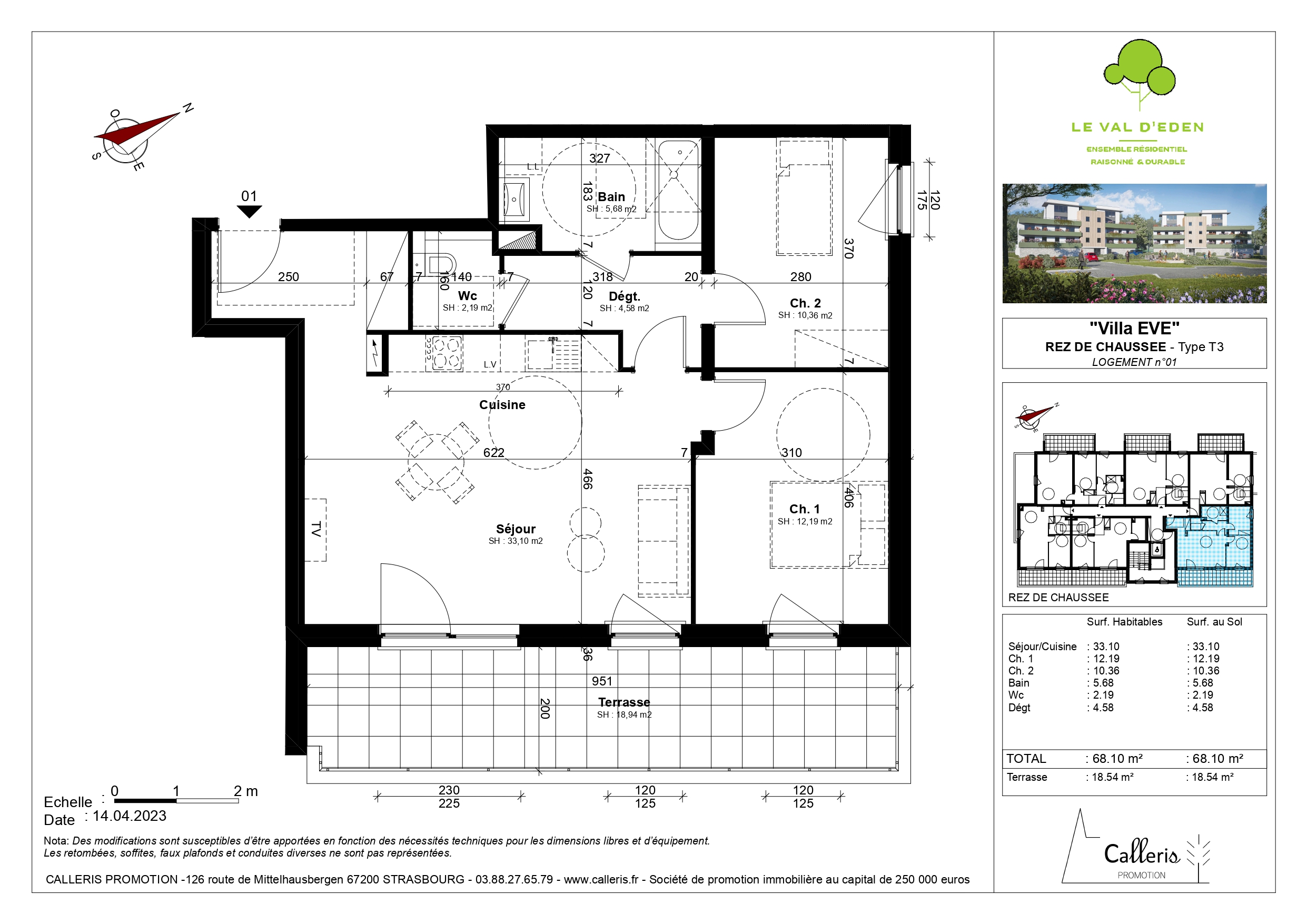
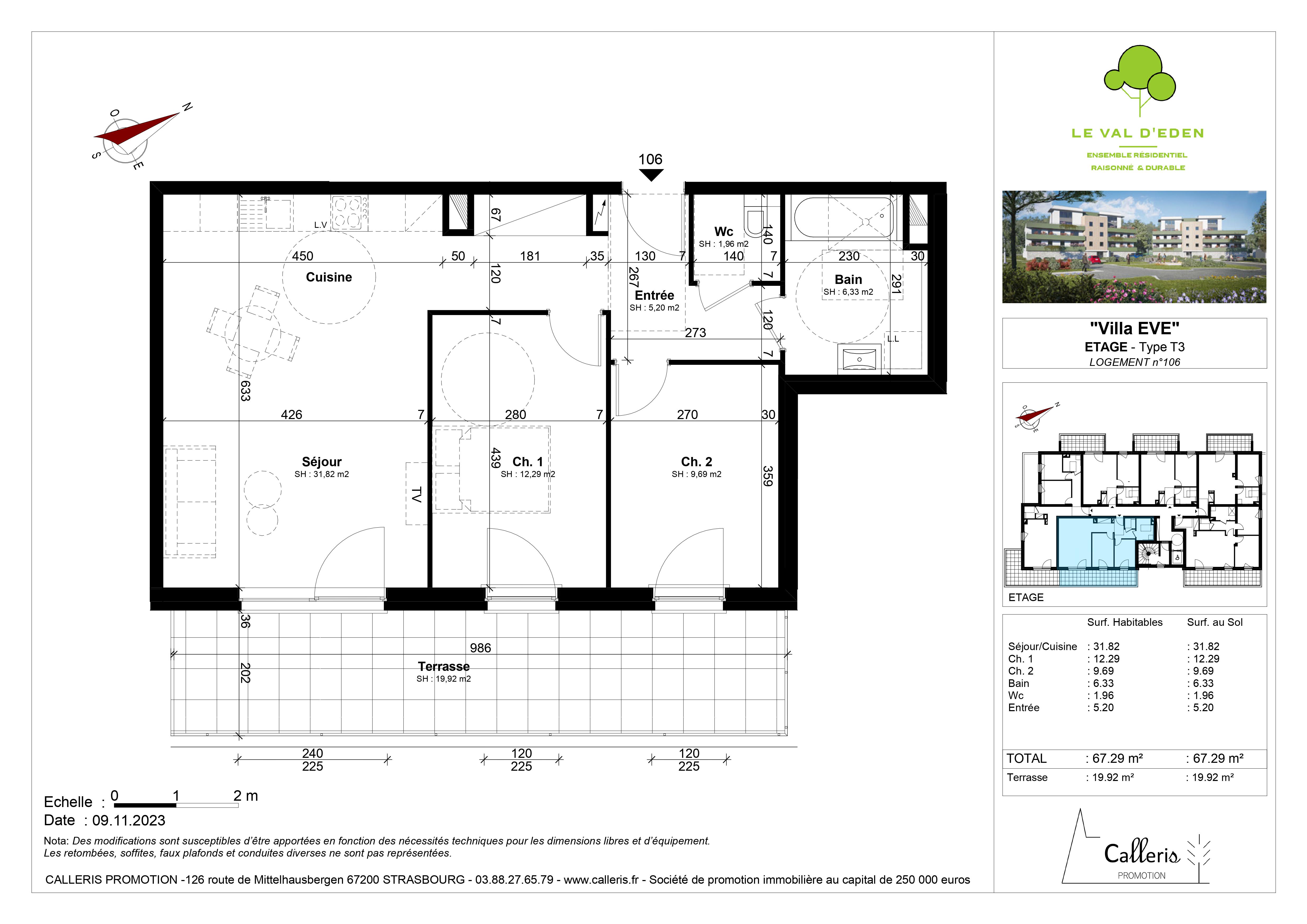
plusieurs lots à vendre : Appartements du T2 au T4 avec belles terrasses, caves, parkings extérieurs et garages, PRIX nous contacter
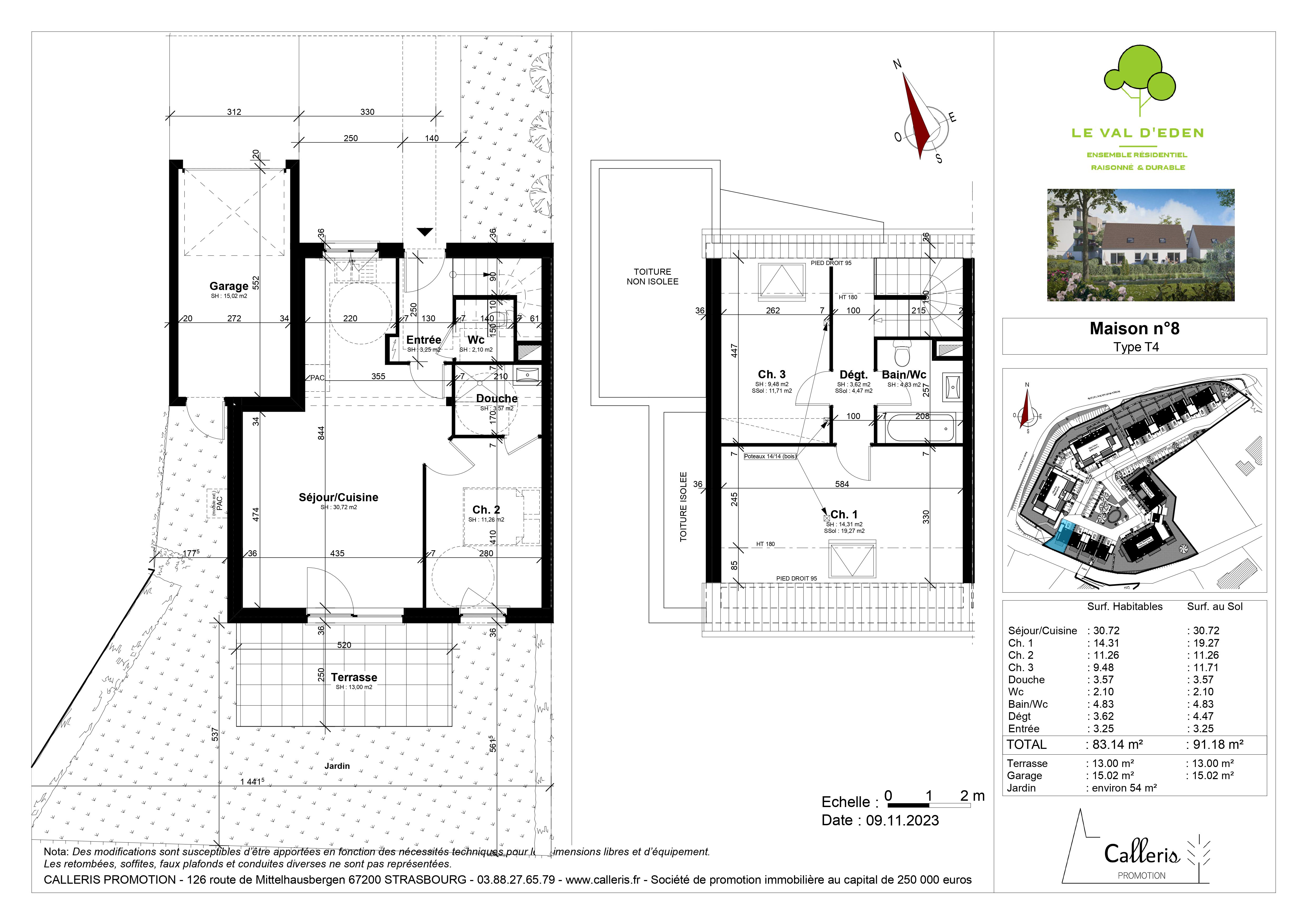
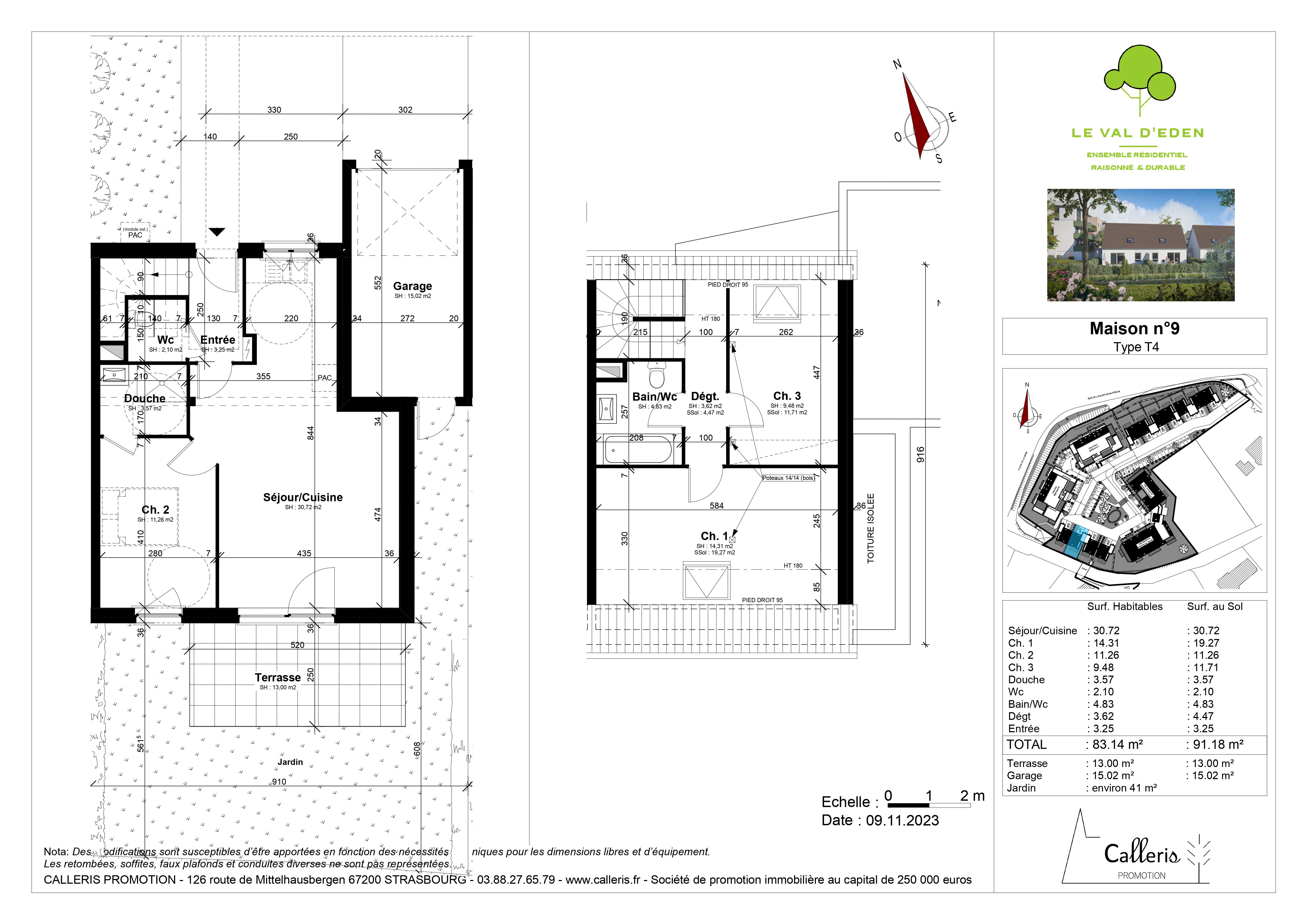
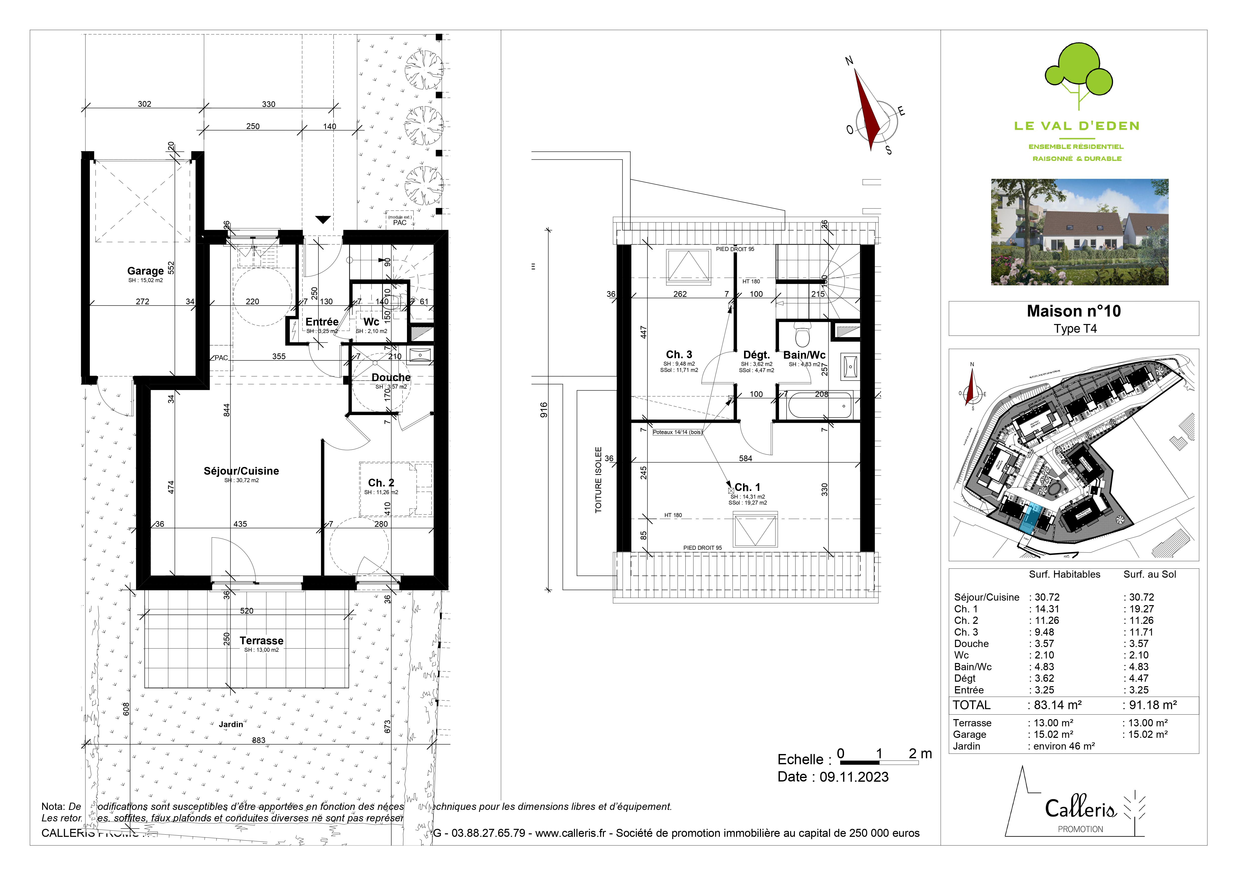
3 lots : Maison individuelle T4 de 83m² avec terrasse et jardin à 265 000 €
 
  
  
  
  
  
  
  
  
  
  
  
  
  
  
  
  
  
  
  
  
  
  
  
  
  
  
  
 